QQ登录

只需一步,快速开始

微信登录,快人一步

扫码登录更安全

登录 | 注册帐号 | 找回密码

茂名论坛

  • 关注抖音号
  • 关注公众号
  • 下载APP
  • 扫码关注抖音号
  • 扫码关注公众号
  • 扫码关注APP
快捷导航
查看: 1650|回复: 7

[民生百态] 茂东这条人行天桥设计如何?人行天桥宽度3.5米,底部净空6米,可上电动车

[复制链接]
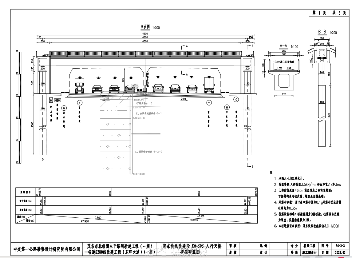
石曹村与坑仔塘村的人行天桥,结构为现浇箱梁,人行天桥宽度3.5m,长度48.5m,主要服务茂东快线两侧行人过街,避免横穿茂东快线改建段主线存在的危
险性。
人行天桥底部净空6米,可上电动车
20260331213014front2_0_3299883_FlqyNv66KRVvo-FfsGriep0BSQvq.jpg
20260331213014front2_0_3299883_FsWFZ7Abt_oO_JZvs9lg1EuWL7wx.png
20260331213014front2_0_3299883_FqxA3TroJKxC-PbeGFh6QnQCHjX8.png
20260331213014front2_0_3299883_FkDGaT3jgzXBkNP2dtN8Mvf4f0wb.png
20260331213014front2_0_3299883_Fs5_-msFg2zkWiSPjUnMd7LqBJWi.png
20260331213014front2_0_3299883_FkDJEwzMguBf3Z6t4FE6sGdVRW12.png

20260331213014front2_0_3299883_Fv3WXDqueDqTjQDMvEa3Eoyt2e8n.png
发表于 2026-3-31 23:54 | 显示全部楼层
宽度3.5米,电鸡要是可以上的话,那就人车抢道了,行人肯定不妙了。
 楼主| 发表于 2026-4-1 00:08 | 显示全部楼层 |来自:茂名在线安卓版茂名在线APP
子陵 发表于 2026-3-31 23:54
宽度3.5米,电鸡要是可以上的话,那就人车抢道了,行人肯定不妙了。

按有效宽度为三米,可以并排六七个成年人了
电动车上天桥肯定是推行的
发表于 2026-4-1 08:51 | 显示全部楼层
3.5米宽,窄点了吗
油十小地主 发表于 2026-4-1 00:08
按有效宽度为三米,可以并排六七个成年人了
电动车上天桥肯定是推行的

这个过于理想化了,新国标25时速那种电鸡可以推得动,但市面上大多数都是那种超标电动车,那么重根本推不上坡的了。推不上那只能开上去哦,一开,那就和行人通行有冲突了。
 楼主| 发表于 2026-4-1 12:18 | 显示全部楼层 |来自:茂名在线安卓版茂名在线APP
and1吖彬 发表于 2026-4-1 08:51
3.5米宽,窄点了吗

只是石曹村与坑仔塘村的人行天桥
茂名大道的天桥宽很多
东荟城与宏丰之间更应该要有人行天桥,那里人流量大,撤销那个红灯才行
发表于 2026-4-1 22:48 | 显示全部楼层
终于有人行天桥了!!!!!!!!!!
您需要登录后才可以回帖 登录 | 注册帐号

本版积分规则

友情链接:
返回顶部
返回列表 快速回复